第八章 绘制建筑详图
第一节 专业讲解——建筑详图概述
8.1.6 楼梯详图的识读
楼梯是楼层垂直交通的必要设施,是楼梯放样、施工的依据。由楼梯段(简称梯段)、休息平台、栏杆与扶手等组成。梯段是联系两个不同标高平面的倾斜构件,上面做有踏步。踏步的水平面称踏面,与踏步垂直的竖面称踢面。休息平台有休息和转换梯段的作用,栏杆扶手则保证楼梯交通的安全。
由于楼梯的构造比较复杂,因而需要单独画出的楼梯详图来反映楼梯的布置类型、结构形式以及踏步、栏杆扶手防滑条等的详细构造、尺寸和装修做法。
楼梯详图一般由楼梯平面图、楼梯剖面图和楼梯踏步、栏杆、扶手接点详图组成。如有楼梯剖面详图,在楼梯底层平面图上要有相应的剖切符号,表示剖面的剖切位置和剖面方向。
楼梯平面图是用假想剖切平面在距地面1m以上的位置水平剖切,向下作的正投影,因此与建筑平面图的形成是完全相同的。建筑平面图选用的比例较小,不宜把楼梯的构配件和尺寸详细表达清楚,所以用较大的比例另行画出楼梯平面图,如图8-3和图8-4所示。

图8-3 楼梯底层平面图

图8-4 楼梯二层平面图
在楼梯平面图中,主要表达:楼梯间的位置,用定位轴线表示;楼梯间的开间、进深、墙体厚度;梯段的长度、宽度以及楼梯段上踏步的宽度和数量,梯段长=(踏步级数-1)×踏面宽;休息平台的形式和位置、楼梯井的宽度、各层楼梯段的起始尺寸、各楼层和休息平台的标高。其中在楼梯底层平面图中,还要标注出楼梯剖面图的剖切符号,如图8-3所示中a-a剖切位置,沿楼梯的上行梯段将楼梯间剖开,绘制相应的楼梯剖面图。
楼梯剖面图主要表示梯段的长度、踏步级数、楼梯的结构形式、材料、楼地面、休息平台、栏杆等的构造做法,以及各部分的标高及索引符号。一般采用1∶50、1∶30或是1∶40的比例绘制。
楼梯节点详图主要表达楼梯栏杆、踏步、扶手的做法。如采用标准图集,则直接引注标准图集编号;如采用特殊形式,则用1∶10、1∶5、1∶2、1∶1比例详细画出,如图8-5所示。

图8-5 楼梯节点详图
楼梯剖面与建筑剖面图的形成完全相同,都是用一个垂直平面,将楼梯梯段垂直剖切开,向未剖切的梯段方向投影所得到的剖面图,如图8-6所示。

图8-6 楼梯剖面图
8.1.7 门窗详图的识读
门窗详图一般都有由各地区建筑主管部门批准发行的各种不同规格的标准图(通用图、利用图)供设计选用。若采用标准详图,则在施工图中只需说明详图所在标准图集中的编号即可;如果未采用标准图集时,则必须画出门窗详图。
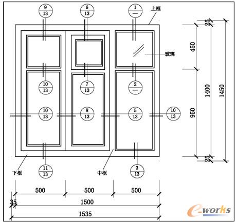
在进行建筑设计中,其门窗起到交通、分隔、防盗、通风、采光等作用,其木门、窗由门(窗)框、门(窗)扇及五金件等组成,如图8-7所示。

图8-7 木门、窗的组成
门窗详图由立面图、节点图、断面图和门窗扇立面图等组成。
1.门窗立面图
门窗立面图常用1∶20的比例绘制,它主要表达门窗的外形、开启方式和分扇情况,同时还标出门窗的尺寸及需要画出节点图的详图索引符号,如图8-7所示。
一般以门窗向着室外的面作为正立面,门窗扇向室外开则称为外开,反之为内开。《图标》中规定:门窗立面图上开启方向外开用两条细斜实线表示,内开用细斜虚线表示。斜线开口端为门窗扇开启端,斜线相交端为安装铰链端。如图8-7所示,门扇为外开平开门,铰链装在左端,门上亮子为中悬窗,窗的上半部分转向室内,下半部分转向窗外。
门窗立面图尺寸,一般在竖直和水平方向各标注三道:最外一道为洞口尺寸,中间一道为门窗框外包尺寸,最里边一道为门窗扇尺寸,如图8-7所示。
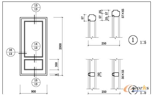
2.门窗节点详图
门窗节点详图常用1∶10的比例绘制,主要表达各门窗框、门窗扇的断面形状、构造关系以及门窗扇与门窗框的连接关系等内容。习惯上将水平(或竖直)方向上的门窗节点详图依次排列在一起,分别注明详图编号,并相应地布置在门窗立面图的附近,如图8-7所示。
门窗节点详图的尺寸主要为门窗料断面的总长、总宽尺寸。如95×42、55×40、95×40等为“X-0927”代号门的门框、亮子窗扇上下冒头、门扇上中冒头及边挺的断面尺寸。除此之外,还应标出门窗扇在门窗框内的位置尺寸,在如图8-8所示的②号节点图中,门扇进门框为10mm。

图8-8 木门详图
3.门窗料断面详图
门窗料断面详图常用1∶5的比例绘制,主要用以详细说明各种不同门窗料的断面形状和尺寸。断面内所注尺寸为净料的总长、总宽尺寸(通常每边要留2.5mm厚的加工裕量),断面图四周的虚线即为毛料的轮廓线,断面外标注的尺寸为决定其断面形状的细部尺寸,如图8-9所示。
4.门窗扇立面图
门窗扇立面图常用1∶20的比例绘制,主要表达门窗扇形状及边挺、冒头、芯板、纱芯或玻璃板的位置关系,如图8-9所示。
门窗扇立面图在水平和竖直方向各标注两道尺寸,外边一道为门窗扇的外包防雨,里边一道为扣除裁口的边挺或各冒头的尺寸,以及芯板、纱芯或玻璃板的尺寸。

图8-9 木门门窗详图