您现在的位置:e-works > 智造书屋 > 书籍列表 > AutoCAD 2013机械设计与工程应用从入门到精通 > 连接板-销轴的绘制

第九章 零件图与装配图的绘制

第四节 连接板-销轴的绘制

22

    1)正常启动AutoCAD 2013软件,选择“文件”→“打开”菜单命令,将“案例\09\连接板-套筒.dwg”文件打开,再执行“文件”→“另存为”菜单命令,将其另存为“案例\09\连接板-销轴.dwg”文件。

    2)执行“删除(E)”命令,将原有的平面图例进行删除操作,然后再选择“粗实线”图层,使之成为当前图层。

    3)执行“矩形(REC)”命令,按照如图9-27所示的矩形尺寸进行绘制。

23
图9-27绘制的矩形

    4)执行“移动(M)”命令,以矩形中点位置为移动基点和重合点,进行相应的移动连接,连接后的效果如图9-28所示。

24
图9-28移动矩形

    5)采用与第4)步骤相同的方法对其他矩形对象进行相应的移动操作,移动后的最终效果,如图9-29所示。

    6)执行“圆(C)”命令,选择三点绘圆的方法,在连接后的销轴左侧位置绘制一圆对象,如图9-30所示。

25
图9-29移动矩形的最终效果
26
图9-30三点绘圆

    7)执行“倒直角(CHA)”命令,对销轴右侧位置处进行倒直角操作,并执行“直线(L)”命令,过倒角后的角点位置处进行连接,如图9-31所示。

27
图9-31倒角并连接

    8)选择“中心线”图层,过中点位置处绘制一水平中心线,并执行“修剪(TR)”命令,修剪掉多余的弧线和直线段,如图9-32所示。

28
图9-32修剪轮廓效果

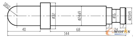
    9)切换到“尺寸与公差”图层,对绘制好的销轴平面图进行尺寸标注,如图9-33所示。

    10)至此,连接板中的销轴零件就绘制完成了,用户按〈Ctrl+S〉组合键进行保存就可以了。

29
图9-33尺寸标注
30