第六章 绘制建筑立面图
第一节 专业讲解——建筑立面图概述
5.绘制顶层和屋顶的立面
1)依据屋顶平面图和高度定位尺寸分别确定纵向和横向定位辅助线。
2)将二层的金属栏杆复制到左边晒台。右边晒台的金属栏杆比图6-11所示的尺寸长300mm,做适当调整后再复制到右边晒台。
3)按顶层平面图、A-A剖面图和如图6-5所示屋顶、天窗的尺寸绘制天窗、百叶窗和屋顶的图线。百叶窗和屋顶均采用“Line”图案进行图案填充。顶层和屋顶的立面效果如图6-13所示。

图6-13 顶层和屋顶的立面效果
6.绘制其他细部的造型、填充外立面的材料图案
1)依据一层平面图中所标注台阶的定形尺寸和定位尺寸,在“台阶”图层绘制台阶的立面图。
2)在一层地面和地坪面之间的外墙上,用“AR-B816”图案进行图案填充,其效果如图6-14所示。

图6-14 填充的墙砖
7.尺寸标注
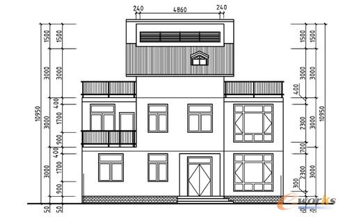
按三级尺寸标注法,分别标注细部尺寸、层高尺寸和总高尺寸。除此之外还应标注屋顶细部无详图的局部尺寸。尺寸数字的高度一般取2.5mm或3.5mm,如图6-15所示。

图6-15 标注尺寸后的效果
8.注写文字及相关符号的标注
按图6-5所示的文字内容,注写施工说明。文字高度应设定为3.5mm乘上出图比例的倒数。其他文字高度的设定与建筑平面图相同。
标高符号和索引符号只需插入在制作的属性块中,以视图面的复杂程度确定缩放比例,一般为70.7、100。标高数字的高度应和尺寸数字的高度一致,定位轴线编号的数字、字母的高度应比尺寸数字大一号。