第七章 绘制常见机械零件图
第二节 绘制齿轮
齿轮是重要的机械零件之一,它的绘制可以依照GB/T 4459.2《机械制图齿轮画法》的相关规范来进行。齿顶圆和齿顶线用粗实线绘制,分度圆用细点画线绘制;齿根圆和齿根线用细实线绘制,也可以省略不画;在剖视图中,齿根圆用粗实线绘制。在齿轮、蜗轮的零件图中,一般用两个视图,或一个主视图和一个局部视图来表示,其中在剖视图中,当剖切平面通过齿轮的轴线时,轮齿一律按不剖处理。
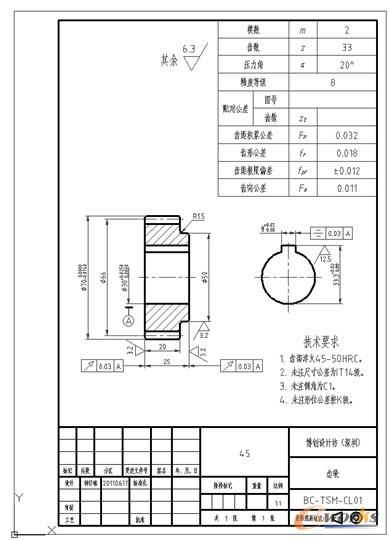
本实例完成的齿轮零件图如图7-63所示。实例的目的是使读者掌握绘制齿轮零件图的方法及典型步骤。

图7-63 齿轮零件图
下面介绍具体的绘制方法及步骤。
1)单击“新建”按钮 ,选择位于随书光盘“图形样板”文件夹中的“TSM_A4_竖向.dwt”文件作为图形样板,单击“打开”按钮。
2)按〈Ctrl+S〉组合键进行文件保存操作,利用弹出来的“图形另存为”对话框将此新图形另存为“TSM_7_齿轮.dwg”。
3)在“图层”工具栏的“图层控制”下拉列表框中选择“中心线”层,并在状态栏中设置启用“正交”模式。
4)单击“直线”按钮 ,在图框内绘制如图7-64所示的中心线。

图7-64 绘制中心线
5)在“图层”工具栏的“图层控制”下拉列表框中选择“粗实线”层;接着单击“圆”按钮 ,绘制一个半径为15的圆,如图7-65所示。
命令: _circle
指定圆的圆心或 [三点(3P)/两点(2P)/切点、切点、半径(T)]: _int 于 //捕捉选择到交点
指定圆的半径或 [直径(D)]: 15↙ //输入半径为15
6)单击“偏移”按钮 ,分别创建如图7-66所示的辅助线,图中特意给出了各辅助线的偏移距离。

图7-65 绘制圆 图7-66 偏移结果
7)单击“直线”按钮 ,根据辅助线绘制出键槽的轮廓线,然后删除辅助线,结果如图7-67所示。
8)单击“修改”工具栏中的“修剪”按钮 ,将图形修剪成如图7-68所示。

图7-67 绘制出键槽的轮廓线 图7-68 修剪结果
9)单击“偏移”按钮 ,分别创建如图7-69所示的辅助线,图中特意给出了相关的偏移距离。
10)单击“直线”按钮 ,绘制如图7-70所示一条直线段。

图7-69 绘制辅助线 图7-70 绘制直线
11)单击“偏移”按钮 ,以偏移的方式创建出所需要的大概轮廓线,偏移结果如图7-71所示。
12)单击“直线”按钮 ,绘制如图7-72所示的直线段。

图7-71 偏移结果 图7-72 绘制直线段
13)使用“修剪”按钮 和“删除”按钮 进行相关操作,并适当调整分度线长度,使图形变为如图7-73所示。
14)单击“倒角”按钮 ,根据命令行提示进行如下操作。
命令: _chamfer
(“修剪”模式) 当前倒角距离 1 = 0.0000,距离 2 = 0.0000
选择第一条直线或 [放弃(U)/多段线(P)/距离(D)/角度(A)/修剪(T)/方式(E)/多个(M)]: D↙ //选择“距离”选项
指定第一个倒角距离<0.0000>: 1↙ //输入第一个倒角距离1
指定第二个倒角距离<1.0000>: 1↙ //输入第二个倒角距离
选择第一条直线或 [放弃(U)/多段线(P)/距离(D)/角度(A)/修剪(T)/方式(E)/多个(M)]: //选择要倒角的直线1
选择第二条直线,或按住〈Shift〉键选择直线以应用角点或 [距离(D)/角度(A)/方法(M)]:
//选择要倒角的直线2
倒角结果如图7-74所示。

图7-73 得到的图形 图7-74 倒角结果
使用同样的方法再创建两处倒角,如图7-75所示。
15)单击“倒圆角”按钮 ,创建如图7-76所示的一处倒圆角,其操作记录及操作简要注释如下。
命令: _fillet
当前设置: 模式 = 修剪,半径 = 0.0000
选择第一个对象或 [放弃(U)/多段线(P)/半径(R)/修剪(T)/多个(M)]: T↙//选择“修剪”选项
输入修剪模式选项 [修剪(T)/不修剪(N)] <修剪>: T↙//设置修剪模式为“修剪”
选择第一个对象或 [放弃(U)/多段线(P)/半径(R)/修剪(T)/多个(M)]: R↙//选择“半径”选项
指定圆角半径<0.0000>: 1.5↙//输入圆角半径为1.5
选择第一个对象或 [放弃(U)/多段线(P)/半径(R)/修剪(T)/多个(M)]://选择要倒圆角的第一个对象
选择第二个对象,或按住〈Shift〉键选择对象以应用角点或 [半径(R)]://选择要倒圆角的第二个对象

图7-75 倒角 图7-76 倒圆角
16)单击“镜像”按钮 ,分别指定要镜像的对象和镜像线,得到的镜像结果如图7-77所示。
17)单击“直线”按钮 ,并启用“对象捕捉”和“对象捕捉追踪”功能,绘制具有投影关系的轮廓线,如图7-78所示。

图7-77 镜像结果 图7-78 绘制轮廓线
18)在“图层”工具栏的“图层控制”下拉列表框中选择“标注及剖面线”层。
19)单击“图案填充”按钮 ,打开“图案填充和渐变色”对话框。
在“图案填充”选项卡上,从“类型和图案”选项组的“图案”列表框中选择“ANSI31”;在“角度和比例”选项组中,设置角度为0,比例为1;在“边界”选项组中单击“添加:拾取点”按钮 ,分别在要绘制剖面线的区域中单击,按〈Enter〉键,接着在“图案填充和渐变色”对话框上单击“确定”按钮,完成绘制剖面线的图形效果如图7-79所示。

图7-79 绘制剖面线
20)标注尺寸。
在“样式”工具栏中指定当前的标注样式为“TSM-3.5”。单击“线性标注”按钮 和“半径标注”按钮 ,标注所需要的尺寸。对于一些表示直径的线性尺寸,需要在其尺寸数值前添加符号“?”,方法是在命令行中输入“DDEDIT”或者“ED”命令,选中要修改的尺寸,在其测量数值前输入“%%c”,以表示直径符号?。初步标注的结果如图7-80所示。

图7-80 初步标注尺寸
21)在“修改”工具栏中单击“分解”按钮 ,根据命令行提示进行下列操作。
命令: _explode
选择对象: 找到 1 个 //选择如图7-81所示的尺寸
选择对象: ↙
22)分解该尺寸后,删除不需要的部分,并适当打断尺寸线,结果如图7-82所示。

图7-81 选择要分解的尺寸 图7-82 修剪并打断尺寸线
23)在命令行中输入命令条目“DDEDIT”,按〈Enter〉键,接着在绘图区域单击要编辑的尺寸文本“29.46”,输入“%%c30+0.0250^0.0000”,如图7-83所示,其中输入的“%%c”自动转换为符号“?”。

图7-83 修改尺寸文本
在文本输入窗口(输入框)中选择“+0.0250^0.0000”,在“文字格式”对话框中单击“字符堆叠”按钮 ,然后单击“文字格式”对话框中的“确定”按钮,修改结果如图7-84所示。

图7-84 修改尺寸数值的结果
知识点拔:
在机械制图中,有时候需要单独标注一些具有组合形式的尺寸文本,这需要使用到“文字格式”对话框上的“字符堆叠”按钮 (当功能区处于非活动状态时)。在AutoCAD 2012中有3种实用的字符堆叠控制码,分别为“/”、“#”和“^”。
“/”:字符堆叠为分式的形式,例如输入“H6/c7”,则堆叠后显示为“ ”。
“#”:字符堆叠为比值的形式,例如输入“H6#c7”,则堆叠后显示为“H6/c7”。
“^”:字符堆叠为上下排列的形式,和分式相比少了一条横线。
24)添加尺寸公差。
选择要添加尺寸公差的齿顶圆直径尺寸,单击“特性”按钮 或者在菜单栏中选择“修改”→“特性”命令,亦可按〈Ctrl+1〉组合键,打开“特性”选项板。查找到“公差”区域,从“显示公差”列表框中选择“极限偏差”,将公差精度设置为0.000,分别输入公差的上偏差为0和下偏差为0.074,其他设置如图7-85所示。

图7-85 设置显示公差
使用同样的方法,设置另外两处尺寸公差,如图7-86所示。

图7-86 完成尺寸公差