1)启动AutoCAD 2013软件,选择“文件”→“打开”菜单命令,将“案例\06\机械样板.dwt”文件打开,执行“文件”→“另存为”菜单命令,将其另存为“案例\06\挡圈.dwg”文件。
2)选择“中心线”图层为当前图层。执行“直线(L)”命令,绘制两条相互垂直的直线段作为挡圈主视图的中心线,长度约为34。
3)将“粗实线”图层设置为当前图层,执行“圆(C)”命令,以两条中心线的交点作为圆心点,绘制直径为28、26、11、5.5的同心圆,如图6-11所示。

图6-11绘制中心线和圆
4)执行“偏移(O)”命令,将水平中心线向上偏移7.5,并以偏移后的水平线与垂直线的交点为圆心绘制一个直径为2.1的小圆对象,如图6-12所示。

图6-12绘制小圆
5)执行“直线(L)”命令,捕捉主视图的相应交点向右分别引伸多条水平线段,再在左侧绘制一条垂直线段,如图6-13所示。

图6-13引伸并绘制直线
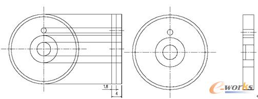
6)执行“偏移(O)”命令,将绘制的垂直线向右偏移1.8和4,如图6-14所示。
7)使用“修剪(TR)”命令,修剪掉多余的线段,对挡圈左视图轮廓进行创建,如图6-15所示。

图6-14偏移直线图6-15挡圈左视图的创建
8)执行“倒角(CHA)”命令,根据命令行提示选择“距离(D)”选项,依次输入“第一、二条直线的倒角长度”为1,如图6-16所示。
9)执行“直线(L)”命令,将倒角后的交点位置处用直线连接起来,并执行“图案填充(H)”命令,如图6-17所示。

图6-16挡圈左视图倒角图6-17倒角并进行填充
10)切换到“尺寸与公差”图层,根据前面讲的标注方法进行尺寸标注,其标注后的最终效果,如图6-18所示。
11)挡圈的绘制到此就完成了,用户可直接按〈Ctrl+S〉组合键进行保存。

图6-18尺寸标注
ICP经营许可证:鄂B2-20080078
(于2003年首获许可证:鄂B2-20030029)
鄂公网安备:420100003343号
© 2002-2025 武汉制信科技有限公司 版权所有
投诉举报电话:027-87592219