1. e-works数字化企业网
  2. 书屋
  3. 书籍列表
  4. AutoCAD 2012建筑与室内装饰设计实例精解(第2版)
  5. 专业讲解——建筑平面图概述

第五章 绘制建筑平面图

第一节 专业讲解——建筑平面图概述


    用户在绘制建筑平面图时,首先应掌握建筑平面图的形成与用途、平面图的命名与图示内容、平面图的绘制要求、平面图的常用图例等。
 
5.1.1  建筑平面图的形成与作用 
 
    建筑平面图是建筑施工图的基本样图,它是假想用一水平的剖切面沿各层的门、窗洞口(通常离本层楼、地面约1.2m,在上行的第一个梯段内)的水平剖切面,将建筑剖开成若干段,并将其用直接正投影法投射到H面的剖面图,即为相应层平面图,如图5-1所示。
建筑平面图的形成
图5-1  建筑平面图的形成
 
    通过水平剖切开的平面图,能够较全面且直观地反映建筑物的平面形状、大小和布置;墙、柱的位置、尺寸和材料;门窗的类型和位置;内外交通联系;采光通风处理;构造做法等基本情况,是建施图的主要图纸之一,也是概预算、备料及施工中放线、砌墙、设备安装等的重要依据。
 
5.1.2  建筑平面图的命名与内容
 
    一般情况下,房屋有几层就应画几个平面图,并在图的下方标注相应的图名,如“底层平面图”、“二层平面图”等。图名下方应加一粗实线,图名右方标注比例。当房屋中间若干层的平面布局,构造情况完全一致时,则可用一个平面图来表达这相同布局的若干层,称之为标准层平面图。
 
    1.底层平面图
 
    底层平面图主要表示建筑物底层(首层、一层)平面的形状,各房间的平面布置情况,出入口、走廊、楼梯的位置,各种门、窗的位置以及室外的台阶、花池、散水(或明沟)、雨水管的位置以及指北针、剖切符号、室外标高等。在厨房、卫生间内还可看到固定设备及其布置情况。
 
    2.二层或二层以上楼层平面图
 
    二层或二层以上楼层平面图不但要表示本层的房间布置及墙、柱、门窗等构配件的位置、尺寸以外,还要画出底层平面图无法表达的雨篷、阳台、窗眉等内容,而对于底层平面图上已表达清楚的台阶、花池、散水等内容就不再画出。另外,因为剖切情况不同,这部分楼层平面图中楼梯间部分表达梯段的情况与底层平面图也不同。
 
    3.屋顶层平面图
 
    屋顶层平面图是房屋顶面的水平投影,主要表示屋顶的形状,屋面排水的方向及坡度、天沟或檐口的位置,另外还要表示出女儿墙、屋脊线、雨水管、水箱、上人孔、避雷针的位置。由于屋顶平面图比较简单,故可用较小的比例来绘制。
 
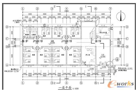
    从图5-2所示的医院病房建筑平面图中可以看出,其建筑平面图的主要内容包括以下方面。
医院病房建筑平面图
图5-2 医院病房建筑平面图
 
  • 定位轴线:横向和纵向定位轴线的位置及编号,轴线之间的间距(表示出房间的开间和进深)。定位轴线用细单点画线表示。
  • 墙体、柱:表示出各承重构件的位置。剖到的墙、柱断面轮廓用粗实线,并画图例,如钢筋混凝土用涂黑表示;未剖到的墙用中实线。
  • 内外门窗:门的代号用M表示:木门—MM;钢门—GM;塑钢门—SGM;铝合金门—LM;卷帘门—JM;防盗门—FDM;防火门—FM。窗的代号用C表示:木窗—MC;钢窗—GC;铝合金窗—LC;木百叶窗—MBC。在门窗的代号后面写上编号,如M1、M2和C1、C2等,同一编号表示同一类型的门窗,它们的构造与尺寸都一样,从图中可表示门窗洞的位置及尺寸。剖到的门扇用中实线(单线)或用细实线(双线);剖到的窗扇用细实用(双线)。
  • 标注的三道尺寸:第一道为总体尺寸,表示房屋的总长、总宽;第二道为轴线尺寸,表示定位轴线之间的距离;第三道为细部尺寸,表示外部门窗洞口的宽度和定位尺寸。建筑平面图的内部尺寸表示内墙上门窗洞口和某些构配件的尺寸和定位。
  • 标注:建筑平面图常以一层主要房间的室内地坪为零点(标记为±0.000),分别标注出各房间楼地面的标高。
  • 其他设备位置及尺寸:表示楼梯位置及楼梯上下方向、踏步数及主要尺寸。表示阳台、雨篷、窗台、通风道、烟道、管道井、雨水管、坡道、散水、排水沟、花池等位置及尺寸。
  • 画出相关符号:剖面图的剖切符号位置及指北针、标注详图的索引符号。
    文字标注说明:注写施工图说明、图名和比例。
 
5.1.3  建筑平面图的绘制要求 
 
    用户在绘制建筑平面图时,无论是绘制底层平面图、楼层平面图、屋顶平面图等时,应遵循相应的绘制要求,才能使绘制的图形更加符合规范。
 
    1.图纸幅面
 
    A3图纸幅面是297mm×420mm,A2图纸幅面是420mm×594mm,A1图纸幅面是594mm×841mm,其图框的尺寸见相关的制图标准。
 
    2.图名及比例
 
    建筑平面图的常用比例是1∶50、1∶100、1∶150、1∶200、1∶300。图样下方应注写图名,图名下方应绘一条短粗实线,右侧应注写比例,比例字高宜比图名的字高小一号或二号,如图5-3所示。
图名及比例的标注
图5-3 图名及比例的标注
 
    3.图线
 
    图线的基本宽度b可从下列线宽系列中选取:0.18mm、0.25mm、0.35mm、0.5mm、0.7mm、1.0mm、1.4mm、2.0mm。当用户选用A2图纸时,建议选用b=0.70mm(粗线)、0.5b=0.350mm(中线)、0.25b=0.180mm(细线);当用户选用A3图纸时,建议选用b=0.50mm(粗线)、0.5b=0.250mm(中线)、0.25b=0.130mm(细线)。
 
    在绘制建筑平面图时,通过采用不同的线型、线宽来表示不同的对象,如图5-4所示。
不同线型表示的对象
图5-4 不同线型表示的对象
 
  • 粗实线b:被剖切到的主要建筑构造(包括构配件),如承重墙、柱的断面轮廓线及剖切符号。
  • 中实线0.5b :被剖切到的次要建筑构造(包括构配件)的轮廓线(如墙身、台阶、散水、门扇开启线)、建筑构配件的轮廓线及尺寸起止斜短线。
  • 中虚线0.5b:建筑构配件不可见轮廓线。
  • 细实线0.25b:其余可见轮廓线及图例、尺寸标注等线。较简单的图样可用粗实线b 和细实线0.25b两种线宽。
    提示:在AutoCAD中,实线为Continuous、虚线为ACAD_ISOO2W100或dashed、单点长画线为ACAD_ISOO4W100或Center、双点长画线为ACAD_ISOO5W100或Phantom。

系列微信

数字化企业网
PLM之神
e-works制信科技
MES百科
工业自动化洞察
智能制造IM
AI智造圈
智能工厂前线
工业机器人洞察
智造人才圈
工业软件应用
智能制造网博会
ERP之家
供应链指南针
© 2002-2025  武汉制信科技有限公司  版权所有  ICP经营许可证:鄂B2-20030029-1(于2003年首获许可证:鄂B2-20030029)
鄂公网安备:420100003343号 法律声明及隐私权政策     投诉举报电话:027-87592219

关于我们    |    联系我们    |    隐私条款

ICP经营许可证:鄂B2-20080078
(于2003年首获许可证:鄂B2-20030029)
鄂公网安备:420100003343号
© 2002-2025  武汉制信科技有限公司  版权所有
投诉举报电话:027-87592219