制信科技
APP
e-works global
个人中心
加盟VIP
登录
加盟VIP
注册
网博会
智能制造评估
需求中心
新闻
业界动态
IT要闻
e-works动态
资讯
记者观察
新闻现场
文库
智能制造
工业机器人
AI
PDM/PLM
MES/MOM
SCM与物流
工业互联网
大数据
ECAD
MCAD
CAE
工控
云计算
智能传感器
EDA
智能制造
工业机器人
AI
PDM/PLM
MES/MOM
SCM与物流
工业互联网
大数据
ECAD
MCAD
CAE
工控
云计算
智能传感器
EDA
专题
特别报道
深度剖析
资料
工业互联网
人工智能
IT基础
MES
APS
PDM/PLM
MCAD
ECAD
智能制造
ERP
工业机器人
能源管理
设备管理
智能物流
target="_blank">传感器
视频
专题集锦
e-works原创
在线讲坛
典型案例
业界观察
现场访谈
e-works咨询
会议培训
全年活动
论坛
培训班
国内考察
国际考察
网上大讲堂
VIP智库
加盟VIP
在线学院
社区
CIO俱乐部
精英
专家
精英面对面
CIO风采
行业
机械
汽车
电子
化工
钢铁
书屋
研究报告
关于e-works
e-works简介
e-works服务
e-works团队
e-works优势
联系e-works
加入e-works
更多
《数字化企业》
e周刊
网站地图
您现在的位置:
e-works
>
智造书屋
>
书籍列表
>
AutoCAD 2012建筑与室内装饰设计实例精解(第2版)
> 实例精解——绘制教学楼总平面图
查看您的阅读历史
第四章 绘制总平面图
第二节 实例精解——绘制教学楼总平面图
上一节
返回目录
下一节
案例文件:案例\04\中学教学楼总平面图.dwg
视频文件:案例\04\中学教学楼总平面图.avi
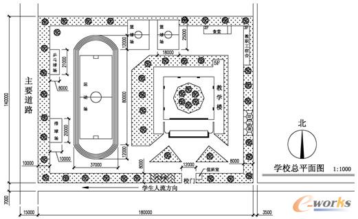
绘制如图4-7所示的中学教学楼总平面图时,首先设置总平面图的绘图环境,再根据要求绘制校园总平面图的外围轮廓,再绘制教学楼的轮廓效果,以及绘制其他附属建筑物轮廓,然后将其建筑物轮廓对象分别插入到校内总平面图的相应位置,再绘制操场体育设施并布置在相应的位置,再进行校园内绿化的布置,然后进行文字、尺寸及图名的标注。
图4-7 中学教学楼总平面图
上一节
返回目录
下一节
AutoCAD 2012建筑与室内装饰设计实例精解(第2版)
作者:
李波 覃才华等编著
类别:
产品创新数字化
出版社:
机械工业出版社
出版时间:
2012-06-01
定价:
¥65.00
京东价:
¥53.30
实际售价以e-works战略合作伙伴当日售价为准
同类图书点击排行榜
AutoCAD 2012建筑与室内装饰设计实例精解(第2版)
ANSYS 13.0与HyperMesh 11.0联合仿真有限元分析
UG NX 8.0中文版数字样机技术及其应用实例(入门与提高)
AutoCAD 2013机械设计与工程应用从入门到精通
ANSYS 12.0有限元分析与范例解析
ANSYS 13.0流场分析技术及应用实例
Creo 2.0中文版完全自学手册
UG NX 7.5基础应用与范例解析 第3版
CimatronE数控编程
SolidWorks 2012中文版完全自学手册