第七章 绘制建筑剖面图
第一节 专业讲解——建筑剖面图概述
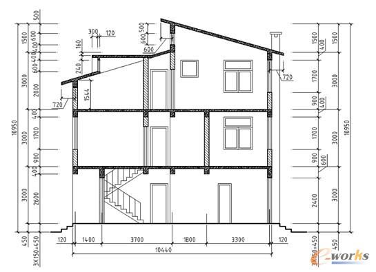
3.绘制剖面图的室外地坪线、底层的地面线和前后的台阶
在地坪线图层,依据高平齐的作图原则,绘制室外地坪线和底层的地面线以及前后的台阶。图7-5所示为绘制的地坪线。

图7-5 绘制的地坪线
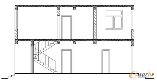
4.绘制底层的剖面图
1)绘制内外墙体、楼地面和梁。
没有被剖切到的墙体用单实线绘制。剖切到的墙体用双线绘制。当图形比例为1∶100~1∶200时,材料图例可采用简化画法,如砖墙涂红、钢筋混凝土涂黑。但在本例中还是填充了材料图例,省略了楼地面的面层线。
2)绘制相应的门窗立面图和剖面图,如图7-6和图7- 7所示。

图7-6 平面门
a) C1 b) C1~C2 c) M1

图7-7 剖面门
3)绘制楼梯及其扶手,如图7-8所示。

图7-8 绘制的楼梯及扶手
5.绘制标准层的剖面图
1)绘制内外墙体、楼地面和梁。
2)绘制M2和C2的剖面图、绘制M2的立面图。
3)如是高层建筑,此时可将绘制好的标准层的A-A剖面图向上复制或矩形阵列。图7-9所示为绘制的标准层墙体、楼地面、梁及门窗。
6.绘制顶层和屋顶的剖面图
1)绘制顶层的内外墙体、门窗及其细部。
2)按如图7-3所示的尺寸绘制屋顶的斜坡、构造的厚度、门窗及其细部,如图7-10所示。

图7-9 绘制标准层墙体、楼地面、梁及门窗

图7-10 绘制顶层和屋顶的剖面图
7.尺寸标注
1)标注外墙上的细部尺寸、标注层高尺寸和总高尺寸。
2)标注轴线间距的尺寸和前后墙间的总尺寸。
3)标注细部尺寸。标注尺寸后的效果如图7-11所示。

图7-11 尺寸标注