| |
 |
eworks近期热点 |
|
|
 |
inventor近期热点 |
|
|
|
| |
|
|
| 当前位置:inventor技术专区 -> 技术文库 |
| |
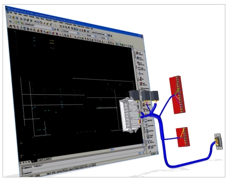
| | Inventor 效率手册(二) | | 发表时间:2007-1-18 | | | | 3.2.5 多端连接线缆  使用自动和手动导线路线设计选项快速选择数千个导线的路径,同时保持对关键导线路径的全面控制。导线使用三种路线设计功能插入片段: _ 手动路线设计选项要求清楚地选择导线的路径。 _ 交互式路线设计选项要求选择敷设路径的起点和终点,以便让算法选择最短的路径。 _ 自动路线设计选项会根据所有可用路径寻找尽可能最短的路径。 3.2.6 捆扎直径计算  使用三维可视化检查和干涉检测工具准确地确定导线线束是否与您的装配拟合。无论您何时添加或删除导线,本软件都会自动计算线束直径,甚至导线之间的空隙。 3.2.7 导线长度计算 现在您可以跳过手动测量硬件样机导线的费时且容易出错的过程。Autodesk Inventor? Professional 能够自动计算高度精确的导线长度,并且会随设计改变进行更新。长度补偿因数支持准确地控制导线和电缆长度,减少了由于导线过短或多长造成的浪费或制造延迟。此外,嵌入式长度特征还能计算在导线进入接头位置之外使用的导线数量。“全局松弛”命令会根据所有导线和电缆长度的百分比给它们添加额外的长度。而且“进位”特征能够通过将导线和电缆长度进位到最接近的指定单位,生成实用、可制造的导线长度。 3.2.8 与AutoCAD Electrical建立电气设计联系  确保三维布线设计从一开始就符合电气设计原理图。运用导线列表文件 — AutoCAD Electrical 的标准报表之一,将电气联接从 AutoCAD Electrical 传递到 Autodesk Inventor Professional。 3.2.9 弯曲半径检查 通过自动检查导线弯曲是否比它们的最小弯曲半径更紧,改进电缆质量,促进制造,避免昂贵的召回。识别由于急弯导致的故障点,测试大型线束弯头的可制造性。 3.2.10 导线布线设计  使用自动和手动导线路线设计选项快速选择数千个导线的路径,同时保持对关键导线路径的全面控制。导线使用三种路线设计功能插入片段: _ 手动路线设计选项要求清楚地选择导线的路径。 _ 交互式路线设计选项要求选择敷设路径的起点和终点,以便让算法选择最短的路径。 _ 自动路线设计选项会根据所有可用路径寻找尽可能最短的路径。 3.2.11 钉板  运用随三维设计改变自动更新的智能特性和标注,快速创建准确的二维线束文档。这将减少由于手动创建和多次设计迭代造成的错误。现在,操作和注释三维线束或电缆的关联二维表示十分简单。您可以添加插针、导线和接头特性;创建接头的二维视图;根据实际导线和线束长度添加标注;提供制造所需的其它数据。 3.2.11 装配文件  使用 Autodesk Inventor? Professional 在您的装配中快速而准确地加入电缆线束位置的详细信息,而不必依靠数字照片或粗糙的草图。由于电缆和线束几何图形可以在 Autodesk Inventor 中本地使用,因此您可以使用标准图形管理器中轻松地创建装配文档。 | | | | |
|
|
|
| |
|