自动标注尺寸
还可以使用工具面板或“二维草图面板”工具栏上的“自动标注尺寸”工具来加快标注尺寸过程。如果单独选择草图几何图元(例如直线、圆弧、圆和顶点),系统将自动应用尺寸标注和约束。如果不单独选择草图几何图元,系统将自动为所有未标注尺寸的草图对象进行标注。“自动标注尺寸”工具使用户可以通过一个步骤迅速快捷地完成草图的尺寸标注。
用户可以:
■ 使用“自动标注尺寸”来完全标注和约束整个草图。
■ 识别特定曲线或整个草图,以便进行约束。
■ 仅创建尺寸标注或约束,也可以同时创建两者。
■ 使用“尺寸”工具来提供关键的尺寸,然后使用“自动标注尺寸”来完成对草图的约束。
■ 在复杂的草图中,如果不能确定缺少哪些尺寸,可以使用“自动标注尺寸”工具来完全约束该草图。
■ 删除自动尺寸标注和约束。
注意要确保完全标注草图的尺寸,在使用“自动标注尺寸”工具之前可以使用“投影几何图元”工具将所有参照几何图元投影到草图中。
可以使用其他尺寸值定义尺寸。尺寸的名称是参数。当编辑尺寸时,可以输入使用了一个或多个参数的等式。
可以用三种形式之一来显示草图尺寸:
■ 计算值
■ 参数名称
■ 参数名称和计算值
可以使用“编辑尺寸”框来修改尺寸。要显示“编辑尺寸”框,请在放置尺寸后单击该尺寸;如果“通用尺寸”工具未处于激活状态,也可以双击该尺寸。
有两种基于尺寸放置显示“编辑尺寸”框的方法:
■ 单击“工具”→“应用程序选项”→“草图”选项卡,并启用“在创建时编辑尺寸”
■ 在“通用尺寸”处于激活状态的情况下,在图形窗口中单击鼠标右键并选择“编辑尺寸”。
尺寸类型
在某些情况下,尺寸预览不满足设计意图。可以通过重置该尺寸来更改尺寸类型,也可以单击鼠标右键,然后从菜单中选择所需类型。通过选择边或顶点,还可以控制应用哪一种线性尺寸。例如,当相对于某个顶点标注某条边时,尺寸将自动与该边对齐。
直径尺寸
在创建旋转零件的设计过程中,可以添加中心线作为旋转轴。如果此中心线用于草图尺寸,默认情况下,它将作为直径尺寸放置。
计算尺寸
可以用 Autodesk Inventor 放置计算尺寸,还可以将现有尺寸的类型更改为计算尺寸。计算尺寸反映了几何图元的大小,但用户不能编辑其尺寸值。使用计算尺寸可以显示仅供参照的尺寸值。
工作流概述:应用计算尺寸
■ 对于现有尺寸,请选择该尺寸,然后从标准工具栏中选择“计算尺寸”按钮。
■ 要在“通用尺寸”工具处于激活状态的情况下创建计算尺寸,请从标准工具栏中选择“计算尺寸”按钮。
计算尺寸显示在括号中。
也可以在受约束的草图对象上自动创建计算尺寸。当用户尝试在受约束的草图对象上放置尺寸时,会显示一个对话框,从中可以选择接受此计算尺寸或者取消放置。
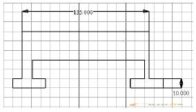
标注截面轮廓尺寸
在本练习中,您需要在草图中添加尺寸约束。下图显示了完整的练习。

练习:向线性对象应用尺寸
1 激活tutorial_files 项目后,打开“dimsketch.ipt”文件。
草图几何图元需要进行尺寸约束,以保持其总体大小。系统已经应用了几何约束,以保持草图的形状。
2 在浏览器中,双击“草图 1”将草图激活。
3 单击标准工具栏上的“观察方向”工具,然后选择任意直线,以获得草图的平面视图。
单击“全部缩放”工具查看整个草图。
4 单击工具面板或“二维草图面板”工具栏上的“通用尺寸”工具。
5 单击草图顶部的水平线,然后放置尺寸。

6 单击该尺寸,显示“编辑尺寸”框。输入135,然后按 ENTER 键。

在本例中,是通过单击尺寸来显示该对话框的, 如果要放置多个尺寸,可以自动显示“编辑尺寸”框。
7 在“通用尺寸”工具处于激活状态的情况下,在图形窗口背景中单击鼠标右键并从关联菜单中选择“编辑尺寸”。
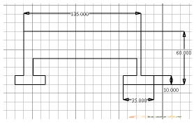
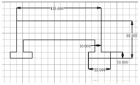
8 按照下列步骤完成尺寸约束:
添加尺寸10。

添加尺寸60。

添加尺寸35。

添加尺寸10。

添加尺寸25和30。
9 在图形窗口中单击鼠标右键并从关联菜单中选择“完成”,退出“通用尺寸”工具。